$649,900
 $3,489 est/mo Sourced by Back At You

439 Alice Avenue,Kitchener, ON N2M 2A3

Kitchener, ON N2M 2A3

Share:

Description

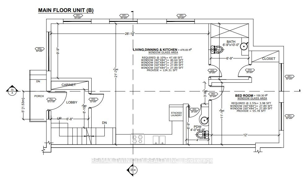
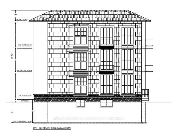
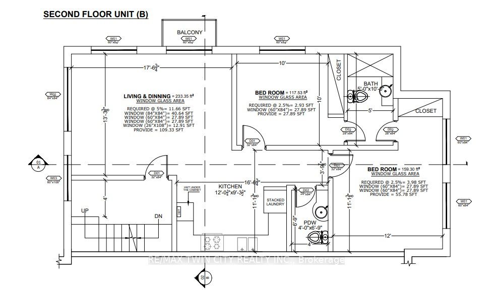
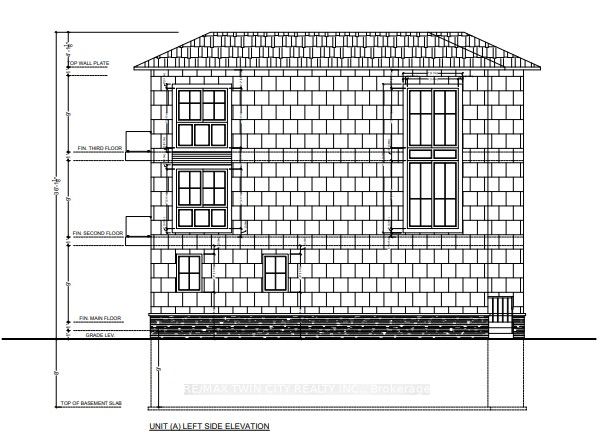
Approved by the City of Kitchener. Attention developers and investors! 6 units possible here. Redevelopment site for 2 triplex's (built as 2 x semi-detached with 3 units in each - see photo gallery for conceptual rendering). Plans attached as supplement documents. Existing structure is best to be ripped down. This property is brimming with potential-pre-approved by the City of Kitchener for a triplex redevelopment. Situated on a large lot in the heart of Kitchener. The existing home currently offers 3 bedrooms and 1 bathroom, providing a solid foundation for renovation or expansion. Conveniently located near public transit, the LRT, Google, Victoria Park, shopping, and other key amenities, this property presents an incredible opportunity for those looking to invest or undertake a full home renovation.

Details

MLS #X12493124
Listing TypeFor Sale
StyleHouse
Sub-TypeResale
StatusNew
Year0
Days On Site9
Listing Provided ByRE/MAX TWIN CITY REALTY INC. | X12493124 360902

Features

Bed(s)3
Bath(s)1
BasementY
Story(s)2

Interior

Interior FeaturesWater Heater
CoolingNone
Heat SourceElectric
Fireplace Yes / NoNo

Exterior

RoofAsphalt Shingle
Foundation DetailsUnknown
Construction MaterialsVinyl Siding

Parking

Garage Yes / NoNo

Utilities

SewerSewer

Taxes

Tax Annual Amount2863
Tax Legal DescriptionPT LT 57 PL 645 KITCHENER PT 3, 58R1654; KITCHENER
Tax Year2025

Area Information

ProvinceON
CountyWaterloo
CityKitchener
Postal CodeN2M 2A3
Sourced by Back At You

Request a showing

Request a showing

Loading Form
MLS Internet Data Exchange (IDX) information is provided exclusively for consumers’ personal, non-commercial use and may not be used for any purpose other than to identify prospective properties consumers may be interested in purchasing, and that the data is deemed reliable but is not guaranteed accurate by the Toronto Real Estate Board.

Contact

Learn More About This Property

ProvinceON
CountyWaterloo
CityKitchener
Postal CodeN2M 2A3
Sourced by Back At You
Nearby Listings (Within 1/10 mile)
Price: $487K - $812K
sqft: 0 - 0
Nearby Listings Property ImageNearby Listings Details
439 Alice Avenue Property Photo 1
$649,900
439 Alice Avenue
Kitchener, ON N2M 2A3
Listing Updated: November 7, 2025 at 11:41:39 PM PST